Detail Design of Sewage Emergency Storages

Detail Design of Sewage Emergency Storages
City of Gold coast Gold coast, Queensland
CDM Smith did a detailed design of ten Sewerage Pump Station (SPS) upgrades in the Coombabah, Merrimac West and Elanora Catchments.

Working with the City of Gold Coast (CoGC) CDM Smith undertook the detailed design of ten Sewerage Pump Station (SPS) upgrades in the Coombabah, Merrimac West and Elanora Catchments. The SPS's required augmen­ta­tion to provide adequate emergency storage capacities to cater for projected growth over the next 50 years. These SPS emergency storages are designed to cater for 4 hours average dry weather flow and prevent discharge to stormwater systems and/or the environment during this period.

City of Gold Coast conducted detailed network modelling and a design solution was concep­tu­alised by CDM Smith that met the storage capacity require­ments within the working depth (elevation range between pump start and overflow level). 

Stakeholder engagement meetings were held with repre­sen­ta­tives from Gold Coast Water, Major Projects, Parks and Recreation, Planning and Network Operation departments to ensure that the solutions met the SEQ Code and CoGC operation and maintenance require­ments.

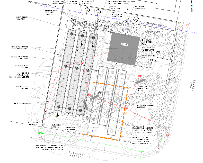
The emergency storage tanks are utilised as passive storage during overload or failure of the SPS. They consist of rubber ring jointed pipes as a horizontal storage solution or a precast maintenance hole as a vertical storage solution. The storage tanks fill via a feed line connected to a maintenance hole or directly to the SPS wet well with an obvert level 100mm below the SPS overflow level.

Geot­ech­ni­cal inves­ti­ga­tions and laboratory testing of samples across the proposed excavation footprints were aimed at determining the depth of groundwater, the presence or otherwise of acid sulfate soils, the methods for excavation, dewatering and trenching, and the sustain­abil­ity of excavated soil for use as engineered fill. Service location and survey of topographic features, pump stations, overflow levels and utilities was also inves­ti­gated.

A Review of Envi­ron­men­tal Factors (REF) was performed and considered potential envi­ron­men­tal impacts associated with the upgrade works. A desktop envi­ron­men­tal assessment was performed and supple­mented by field assessments which included site obser­va­tions, vegetation measure­ments, soil testing and iden­ti­fi­ca­tion of groundwater depth. An envi­ron­men­tal risk assessment of the proposed activities was undertaken and site specific management measures identified to minimise the risks identified.

A Safety in Design (SiD) risk assessment was undertaken in accordance with the Queensland Work Health and Safety Act 2011 (WHS Act) and Queensland Work Health and Safety Regulation 2011. The WHS Act provides a framework to secure the health, safety and welfare through the elimination or minimi­sa­tion of risks arising from work or from particular types of substances or plant. As part of complying with the Act, the designs were assessed to ensure, so far as is reasonably practicable, that plant, substance or structure is designed to be without risk to the health and safety of persons who carry out any reasonable foreseeable activity at the workplace.

Project Details

Related Projects and Insights